Background
Experience that shapes Benchmark+
Before founding Benchmark+, I spent over a decade in building services consultancy, working on projects ranging from large-scale residential schemes to complex commercial developments. That experience now shapes the way Benchmark+ delivers support.
These projects represent work completed prior to founding Benchmark+, during my time with leading UK consultancies. The insight gained from these experiences directly informs how Benchmark+ approaches every project today — with technical rigour, coordination expertise, and a focus on practical results.
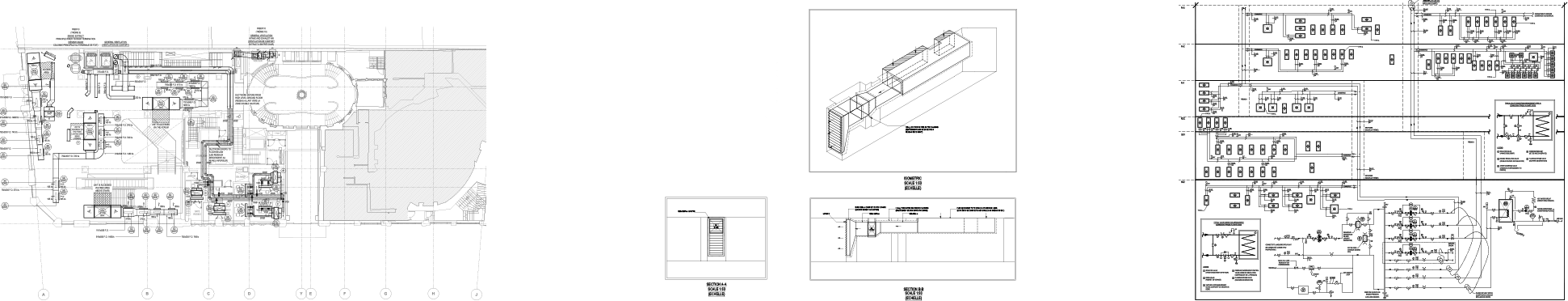
Nike Store - Paris, Champs Elysee

The renovation and expansion of the Nike House of Innovation in Paris was a major international project, transforming a historic building on the world-famous Champs Élysée into nearly 26,000 ft² of high-end retail, event, and office space. The development combined flagship retail with creative and corporate functions, requiring meticulous services integration within a tight heritage framework.
I was responsible for delivering all mechanical and public health services, along with the life-safety smoke ventilation system. Working closely with Nike’s UK, French, and US design teams, as well as French authorities, I ensured that all systems met both local and global standards for energy performance and safety.
This integration reduced operational energy demand while maintaining full retail comfort conditions. The project ultimately delivered a coordinated and energy-efficient mechanical solution that balanced heritage constraints with Nike’s global sustainability ambitions.

Gallions View - London, Greenwich
Located on the banks of the Thames, Gallions View comprised 333 new residential units, including a mix of apartments, duplexes, and houses. The project required a careful balance between architectural ambition, thermal comfort, and energy efficiency, particularly as it progressed through evolving planning and regulatory standards.
I undertook detailed thermal modelling and overheating analysis using the TM59 methodology, focusing particularly on upper-floor units most at risk of overheating. Working closely with the design and planning teams, I developed multiple design iterations that refined glazing performance, ventilation strategies, and façade orientation.
As the design evolved, I provided ongoing guidance to ensure the proposed measures remained cost-effective, practical to implement, and aligned with the project’s energy strategy. By interlinking environmental design with architectural coordination, the scheme met its overheating compliance targets without introducing excessive system complexity or unnecessary capital cost. The result was a comfortable, compliant residential environment that demonstrated how early-stage modelling can drive effective design decisions.



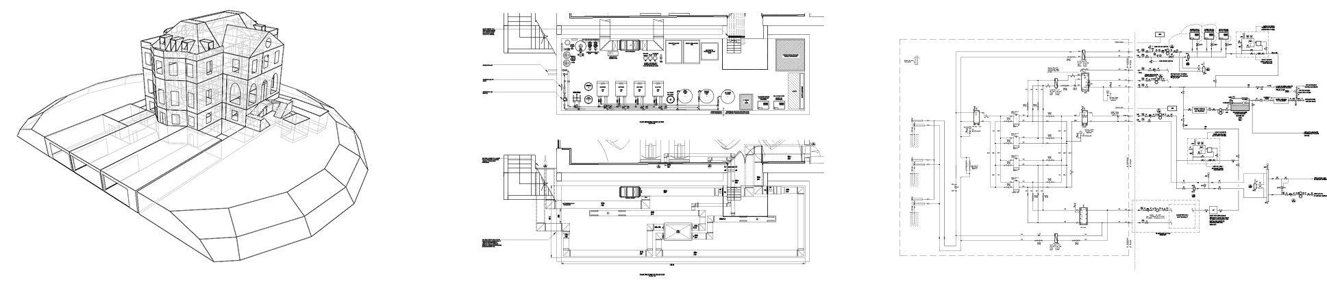
Harleyford Manor - Marlow, Buckinghamshire

The refurbishment and expansion of Harleyford Manor, a historic stately home in the Buckinghamshire countryside, required a sensitive and technically advanced approach. Serving as lead mechanical engineer and primary client contact, I managed the complete design and delivery of all mechanical and public health systems, from concept through to construction.
The project included the renovation of the main manor house and the creation of a new plant room, seamlessly blending traditional architecture with modern engineering solutions. My team undertook extensive feasibility studies of potential renewable and low-carbon technologies, evaluating life-cycle cost, space, and integration constraints.
Following detailed analysis, a ground-source borehole system was selected to provide heating, cooling, and domestic hot water. This solution offered a sustainable long-term energy strategy while preserving the integrity of the historic structure. The result was a fully coordinated, low-energy mechanical system that met the estate’s comfort and efficiency needs without compromising its heritage value.

Beaufort Park - London, Colindale
The redevelopment at Beaufort Park involved the design of another 333 residential units within a dense urban masterplan. The project required close collaboration with the developer and design team to mitigate overheating risk across a variety of apartment layouts and orientations.
I led the dynamic thermal modelling and overheating assessment process, applying the CIBSE TM59 standard to evaluate the performance of each dwelling type under different design and climatic conditions. The iterative modelling process explored multiple mitigation strategies — including solar control glazing, external shading, and adaptive ventilation methods — ensuring solutions were technically robust and commercially viable.
By integrating these analyses early, I helped the design team optimise the building form and façade specification before detailed design commenced. The resulting development met overheating criteria across all tested dwellings, balancing occupant comfort with construction efficiency and long-term energy performance.



Cadogan Cafe - London, Chelsea

Located just outside the Saatchi Gallery, the Cadogan Café is a unique modern addition to Chelsea’s urban landscape, combining striking architecture with exceptional environmental performance. The project achieved BREEAM Excellent and won the Hotels & Hospitality category at the New London Architecture Awards.
As mechanical engineer, I was responsible for the design of all key systems, including ventilation, heating, cooling, domestic water, and gas services. The project’s underground layout, distinctive curved roof structure, and integration within a public square required careful technical coordination with architects, structural engineers, and environmental consultants.
I also carried out detailed thermal modelling to confirm comfort levels under a wide range of occupancy and weather scenarios, ensuring that all systems were appropriately sized and responsive. The final design delivered a comfortable, efficient, and beautifully integrated building that performs as well technically as it does architecturally, all while maintaining sensitivity to its green surroundings.

Contact us now to see how we can help
Specialist building performance insights tailored to support consultancies with accurate assessments and efficient project delivery.
